服务热线
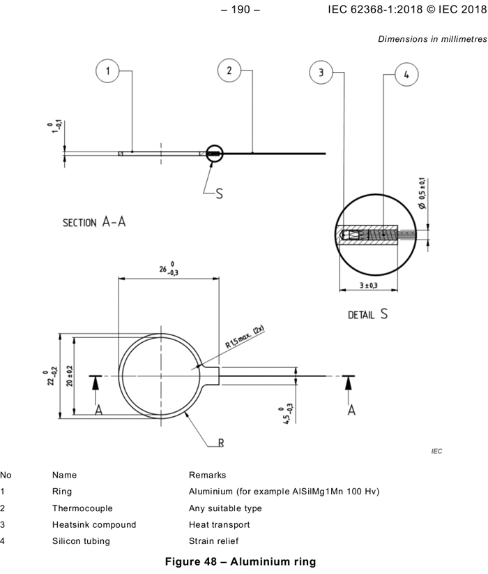
铝环是广东安规检测有限公司根据标准IEC 62368-1 图48设计制作而成的。
产品设计者:广东安规检测有限公司
设计标准:根据IEC 62368-1 图48要求设计制作而成。
产品用途:用于测试无线充电的配套测试治具。
产品参数:
AG-IEC60335D15测试角用直径15mm厚度1mm铜片
AGSM1380B单相设备接触电流测试盒
AGP2 IEC61032 试验钢球2图6
7006-22A-4 E27灯座接触性能规及防意外触电规
AG906FSZW IEC60906 15A125V二极不带极性最大拔出力规
AGD40 40mm直径半球探棒
AGBJY电池挤压试验机
AGGB03F916A GB1003-2016图9三相插座带电插套接触规16A