AGSU0113 UL1598温升测试天花是广东安规根据标准UL1598第19.10节及图19.10.1、UL1993图9.2及9.5.2节的要求设计制作而成。
产品设计:广东安规检测有限公司
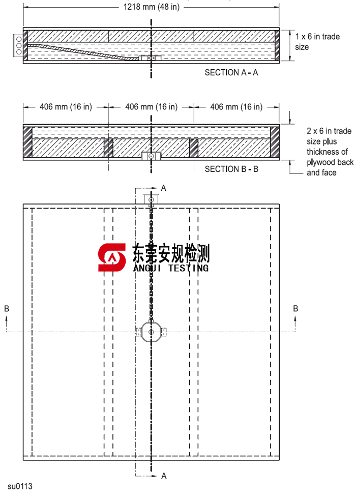
设计标准:AGSU0113 UL1598温升测试天花是广东安规根据标准UL1598第19.10节及图19.10.1、UL1993图9.2及9.5.2节的要求设计制作而成。
产品概述:UL测试天花带可活动支架与脚轮,可移动,可随意更换摆放位置,非常方便实验室进行日常测试与设备管理。
UL1598温升测试天花满足以下结构要求:
(1) 正面和背面为1218mm×1218mm,12mm厚的胶合板。
(2) 两边木料为2 x 6 in。
(3) 两端木料为1 x 6 in。
(4)内部支撑木料为2 x 4 in。
(5) 内装美国进口UL认证的标准4 x 1-1/2 in的8角形接线盒(俗称八卦板)。
注:目前中国市面上其他公司生产的大部分UL1598天花所使用的Outlet Box均为手工制作,非标准要求的Outlet Box,无UL认证或仿冒UL认证,本公司均为美国原装进口UL认证八卦板,直接从美国市面上购买所得。包括侧面的接线盒,均有UL认证,其他外行仪器商为国内随意寻找接线盒,完全不能达到标准要求,不能通过正儿八经的UL仪器设备审核。
(6) 接线包含一根白色和黑色的14AWG导线及一根16AWG或更粗的线接在接线盒上用于接地。
(7) 天花内垂直铺设两层约89mm厚的玻璃纤维,热阻值为Rsi 1.4到1.9,直接与八卦板接触并完全铺设于金属导线管周围。
(8) 测试天花底部至少距离地面1.8米,请保证测试房间层高至少达到2.3米左右,距离任意墙面或其他障碍物至少0.6米。
